AcrosstheCreek

Rediscovering Lost Tales of Denver's Historic La Alma Lincoln Park Neighborhood

Menu

Skip to content
  • Home
  • Building History
  • Business and Industry
  • Community Property
    • Institutions
    • Parks
    • Streets and Railways
  • Frontier Legacies
  • Modern Perspective
  • Soul of La Alma
    • Chicano Movement
    • Spirit of the Worker
  • About the Author
  • Visit LPNA website
  • La Alma Lincoln Park – Preliminary Discussion of Potential Historic Districts
  • La Alma Lincoln Park Timeline

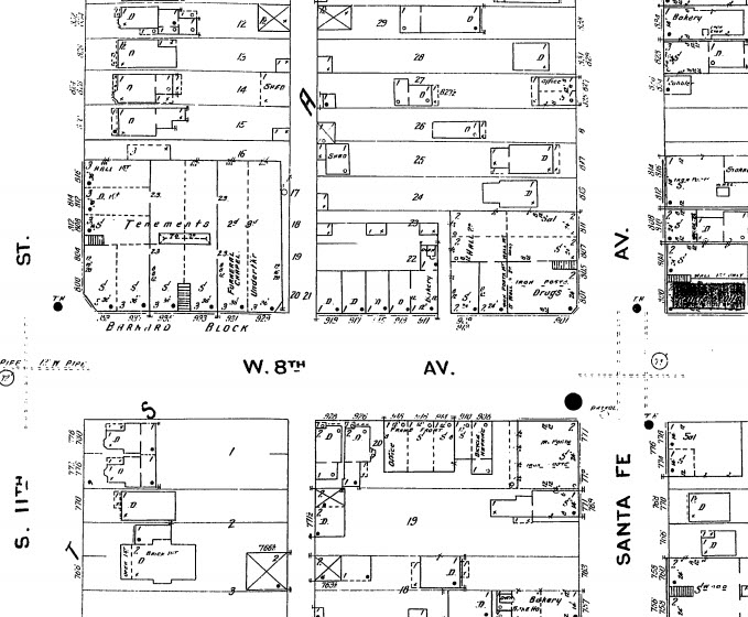
Kalamath and 8th, Sanborn Map Denver 1903-1904vol.1,1903, Sheet 58

Share this:

  • Share on Facebook (Opens in new window) Facebook
  • Share on LinkedIn (Opens in new window) LinkedIn
  • Share on X (Opens in new window) X
  • Email a link to a friend (Opens in new window) Email
  • Print (Opens in new window) Print
Like Loading...

Leave a comment Cancel reply

Kalamath and 8th, Sanborn Map Denver 1903-1904vol.1,1903, Sheet 58

Published: January 11, 2015 Full-size: 679 × 560

Similar Images

Blog at WordPress.com.
  • Comment
  • Subscribe Subscribed
    • AcrosstheCreek
    • Join 33 other subscribers
    • Already have a WordPress.com account? Log in now.
    • AcrosstheCreek
    • Subscribe Subscribed
    • Sign up
    • Log in
    • Copy shortlink
    • Report this content
    • View post in Reader
    • Manage subscriptions
    • Collapse this bar
%d